
SDM-2020 Satellite Demodulator Revision 4
Installation MN/SDM2020D.IOM
2–4
2.2.1 Data Interfaces
Note: Refer to Chapter 1 for description of the available data interfaces.
CAUTION
To avoid damaging the demodulator, always disconnect the power
before removing or installing a data interface.
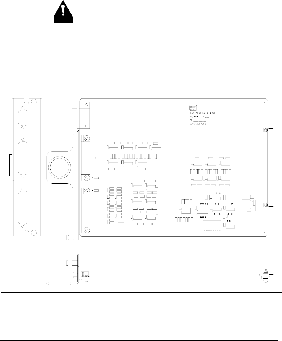
The data interface is a removable, plug-in module that provides a terrestrial connection to
the demodulator. An interface consists of a Printed Circuit Board (PCB) attached to a
faceplate. The faceplate contains connectors appropriate for the interface type, and two
captive mounting screws.
Figure 2-2 is an example of a typical data interface.
J3 PARALLEL J4 SERIAL J5 AUX
Figure 2-2. Typical Data Interface Module
Komentáře k této Příručce